
Estuda permuta. Excelente sobrado comercial residencial, reversível para ser somente residencial.
Parte comercial: Clínica de Fisioterapia, no piso inferior, recepção, copa, sala de espera, banheiro, sala de atendimento com ducha, piso superior com 2 cômodos.
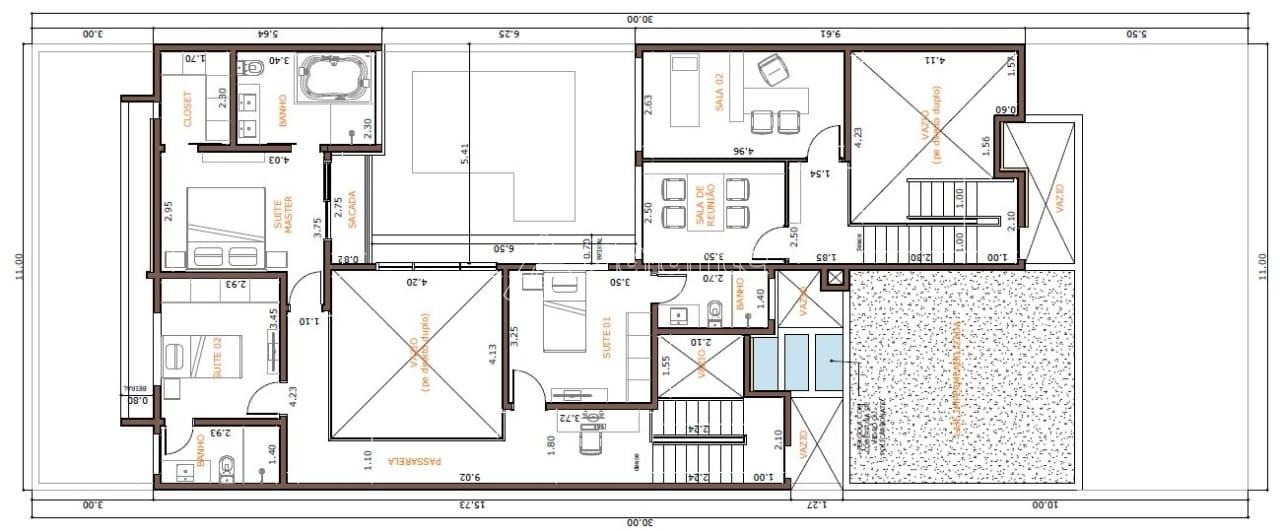
Parte Residencial em construção, falta apenas o acabamento. 3 suítes sendo uma máster com varanda, living para 3 ambientes, cozinha integrada com living e espaço gourmet com churrasqueira, dispensa, banheiro, lavabo, lavanderia e 2 vagas de garagem. Espaço para piscina como consta no projeto.
Localização com fácil acesso para principais avenidas, rodovia, comércios, posto de saúde e escola.
Estuda-se proposta.
Agende sua visita.

